menu
GR
EN
Εταιρικό Προφίλ
Έργα
Αποπερατωμένα
Μελλοντικά
Υπό-Κατασκευή
Ιδιοκτησίες Προς Πώληση
Επικοινωνία
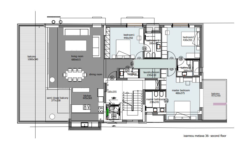
Ιωάννη Μεταξά 36
Περιοχή:
Βούλα
Έργο:
Ιδιωτική κατοικία
Έναρξη:
14/12/2020
Περατωση:
01/10/2022
Φωτογραφίες
^